Home | Commercial Listings | 25/639 Beach Road, WARWICK WA 6024
Details
Current Lease till 31/05/2030 with Options till 31/05/2040
A rare opportunity to invest in a strata property in the Warwick Entertainment Centre precinct with McDonald’s as a long term “A grade” tenant, operating since 1999.
PROPERTY DETAILS
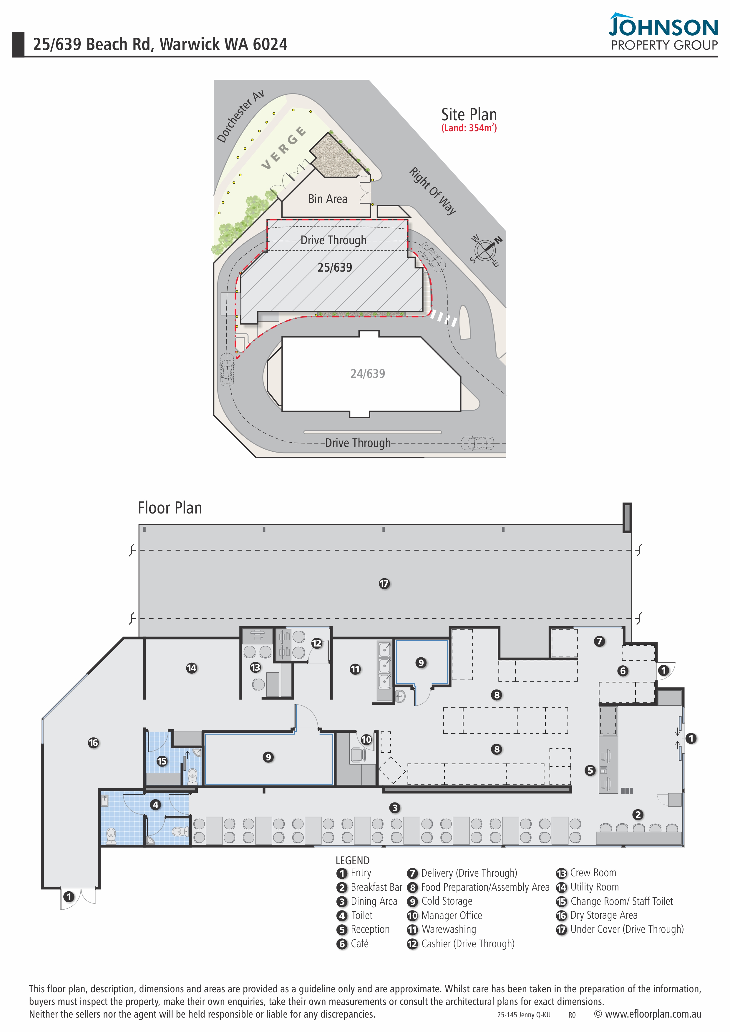
• 354 sqm strata lot with easement to use driveway next to lot
• zoned commercial
• 182 sqm gross lettable area
TENANCY DETAILS
Net Rent: $209,704.60 p.a. excluding GST
Pylon Licence Fee: $1,282.33 p.a. excluding GST
Variable Outgoings: Recoverable from Tenant except for Management Fees which Tenant contributes $3,746 p.a. excl GST (Landlord pays approx $12,900 p.a. excl GST for the balance towards Management Fees)
Original Lease Commencement – 1/06/1999
Lease Options: 1/06/2030 to 31/05/2035
1/06/2035 to 31/05/2040
Rent Reviews: annually based on CPI or 5% increase, whichever is the lower
Contact exclusive agent:
Jenny Quek on 0419 968 870 for more information.
Additional Information
Property Features
Property Features
- Retail
- Land is 354 m²
- Floor Area is 182 m²

Recently Sold By Jenny Bee-Han Quek
Get in touch with the
Johnson Property Group team
Real stories from property owners and investors.
Discover how our personalised approach and expert guidance have helped clients achieve their property goals. From homeowners to investors, see why Johnson Property Group is a trusted partner in property success.
Kate & Colin Holsgrove
Peter Robinson
– CEO Metrowest Group










